VS-NMS Pfeilgasse
SCHULERWEITERUNG PFEILGASSE
Die neue an den Bestand anschließende Ergänzung generiert in den Obergeschossen zusätzliche Verknüpfungen zwischen den – in einer innerstädtischen Blockrandbebauung gelegenen –Trakten der Schule. Sie enthält vier Freizeitklassen im 1. Obergeschoss, einen Speisesaal mit Aufwärmküche im 2. OG und verschiedene Serviceräume. Auf Erdgeschossniveau verbleibt neben dem bestehenden Traforaum eine überdeckte Spielfläche für den Kindergarten.
Das Gebäude steht als „aufgeständerter“ Pavillon im grünen Innenhof und bietet für die Schule Räume mit starken Freiraumbezug. Im 1. Obergeschoss sind diese als zusammenhängender, überschaubarer Bereich mit zentralem „Multifunktionalem Bereich“ geplant. Als Möbel wirkende Raumabschlüsse mit Oberlichtverglasungen und Sichtfenster in die Klassen erlauben unterschiedliche Nutzungen und individuell abgestimmte Unterrichtsformen. Eine Freitreppe führt zum Pausenhof der Schule. Der Speisesaal im 2. Obergeschoss öffnet sich über raumhohe Verglasungen zu den auf dem Niveau der umliegenden Baumkronen gelegenen Terrassen.
Die Zugangsrampe von der Pfeilgasse und ein neuer Lift ermöglichen eine behindertengerechte Erreichbarkeit aller Ebenen und die Anlieferung des Speisesaales.
Eine bauliche Verbindung zum Kindergarten in der Josefstädterstraße wurde mitgeplant und bietet die Option einer zusammenhängenden Bildungseinrichtung (Bildungsgrätzl) mit grünem Hof in der Mitte für Kinder von 0 -14 Jahren.
Gols EFH
Einfamilienhaus Gols, 2016-2019
Die bewusst gesuchte Schmalheit (nur 13,1m breit) des nach Südwesten orientierten Hangrundstückes prägt die Entwicklung eines freistehenden in die Tiefe organisierten Wohntyps, durch den das Potenzial von Grundstücken mit geringen Erschließungsflächen (schmal, kein Hintaus) und der Mehrwert von flächensparendem Bauen aufgezeigt werden soll.
Das teilweise vom Niveau abgehobene Gebäude lässt das Grundstück durchlässig. Es formt verschiedene, durch Mauern an den Grundgrenzen abgeschirmte Freiräume und schafft ein Wohnen mit starkem Außenraumbezug auf mehreren Ebenen mit Ausblick zum Neusiedler See.
Im Inneren entstehen durch die Tiefe des Baukörpers unterschiedliche Raumqualitäten, durch die verschiedene Nutzungen angeregt werden. Blickachsen über die drei Geschosse verknüpfen diese Bereiche. Sie schaffen einen zusammenhängend erlebbaren, nach Südwesten gerichteten Raumzusammenhang über dem in der vorgefundenen Vegetation gehaltenen Garten.
Mit seiner an drei Seiten diaphanen Oberfläche entzieht sich das Gebäude einer formal eindeutigen Wahrnehmung mit klaren Kanten. Unterschiede zwischen Körper und hinterlüfteter Hülle unterstützen diese Absicht und ermöglichen Zusatznutzungen zwischen diesen Schichten (Kräuterkisten, Belichtung und Belüftung des Sanitärbereiches nach Nordwesten).
HTBLVA Spengergasse
NEUBAU UND FUNKTIONSSANIERUNG
Spengergasse, Wien 5, 2008-12, Wettbewerb – 1.Preis
„Das Freistellen der Bestandsbauten verstärkt die Präsenz der Schule im Stadtgefüge und definiert die Nahtstellen als Übergangszonen zwischen Innen (Schule) und Außen (Straßenraum).“
Der Neubau folgt diesem Konzept und schafft – abgesetzt vom Bestand und ein Geschoß über dem Hofniveau – eine neue Eingangsplattform für die Schule und das vom Schulbetrieb unabhängige Österr. Textilinstitut. Er enthält zwei Turnsäle im Untergeschoß und darüber frei disponierbare Geschoßflächen für Klassen und Institutsräume. Funktionsdefinierende Trennungen wurden in Leichtbau ausgeführt und sind damit offen für sich ändernde pädagogische Anforderungen. In der Ausformulierung der Straßenfassade wurde auf die besondere Situation (Südwestecke) reagiert und dem Sonnenstand nachgeführte Vertikallamellen geplant. Sie liegen als Filter vor der Glasfassade und variieren – drehbar vor den Fenstern – die Durchsicht. Die Anbindung an den Bestand erfolgt über verglaste Brücken in den Obergeschoßen. Der ein Geschoß tiefer liegende, an den Enden abgesenkte, Innenhof bildet das verbindende Element für die einzelnen Bauteile.
Auszeichnung: Gebaut 2011, MA19; Fotos © G. Erlacher
Wohnbau Gramatneusiedl – BT A
„SOZIALER“WOHNBAU GRAMATNEUSIEDL
26 Wohnungen, Gramatneusiedl, 2017
In baulicher Einheit mit dem südlich angrenzenden Kindergarten geplant, bildet das Wohngebäude mit Einrichtungen der Altenbetreuung eine sozialen Mitte am Nordrand von Gramatneusiedl.
Sein viergeschossiger Baukörper gibt Orientierung im Siedlungsgebiet und schafft mit seiner freien Erdgeschosszone einen überdeckten Vorbereich für den Kindergarten, wodurch gemeinsam mit dem daran angrenzenden Aufenthaltsbereich der Altenbetreuung ein kommunikativer Ort entstehen soll.
Die Wohnungen darüber werden von einem großzügigen, verglasten Laubengang erschlossen und sind entweder barrierefrei adaptierbar oder für betreutes Wohnen ausgeführt. Südseitig oder westseitig angeschlossene Balkone orientieren die Einheiten zur Sonne und zur, im leicht abschüssigen Gelände möglichen Aussicht.
Wohnen am Viertelgraben
Bad Vöslau, 2017
Die Zeilenbebauung nimmt Bezug auf die nordseitig angrenzende Einfamilienhausstruktur und formt mit dem Bestand einen durch die Hauszugänge rythmisierten Straßenraum.
Nach Süden –zum angrenzenden Grünzug– ist der Baukörper abgetreppt und bietet großzügigen Freiraum für jede Wohnung, wobei jeweils sieben, unterschiedlich ausgeprägte Einheiten von einem Stiegenhaus erschlossen werden.
Das freistehende Kopfgebäude sucht den Übergang zur im Westen angrenzenden Wohnbebauung. Dazwischen bleibt Raum für einen Kinderspielplatz.
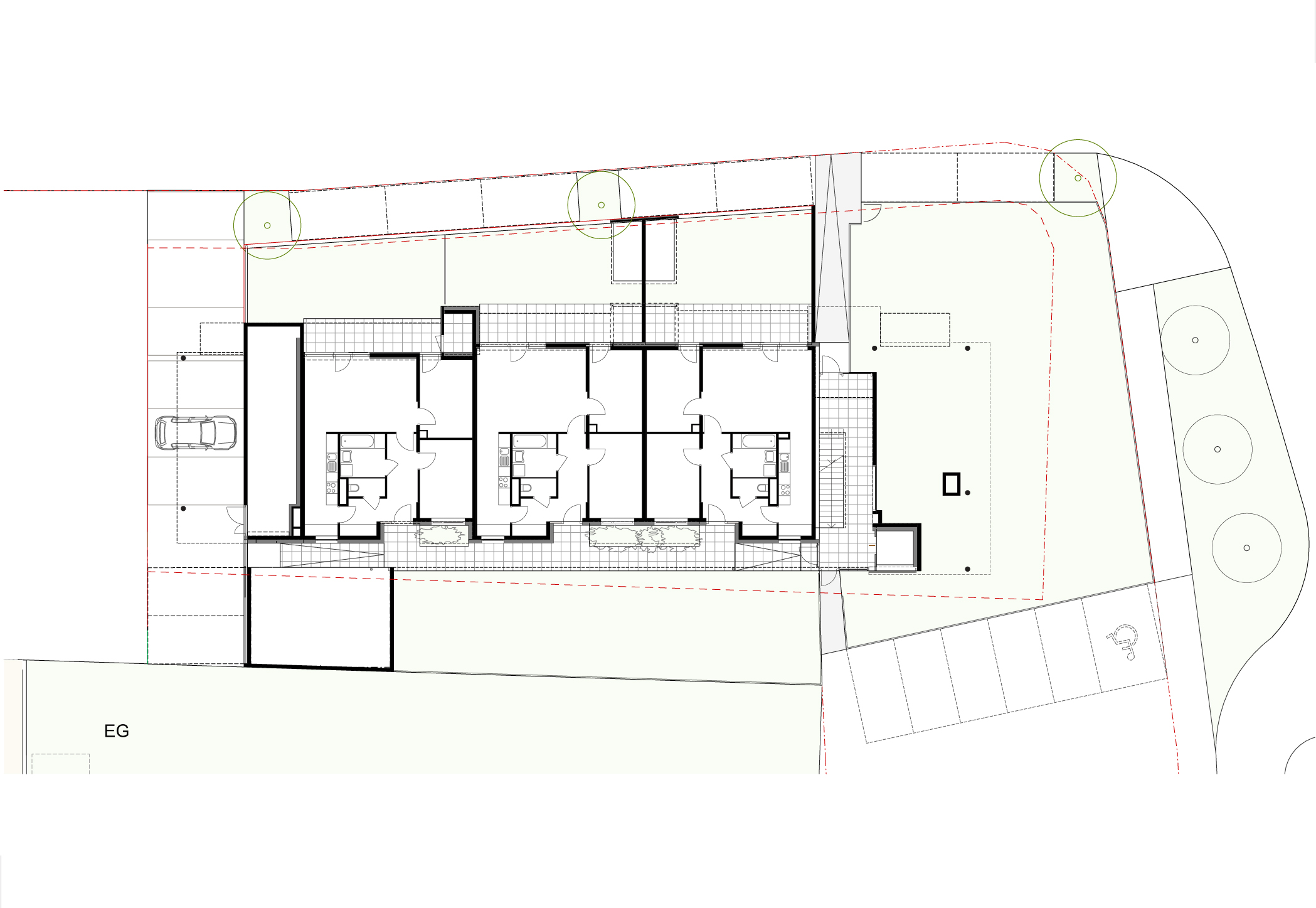
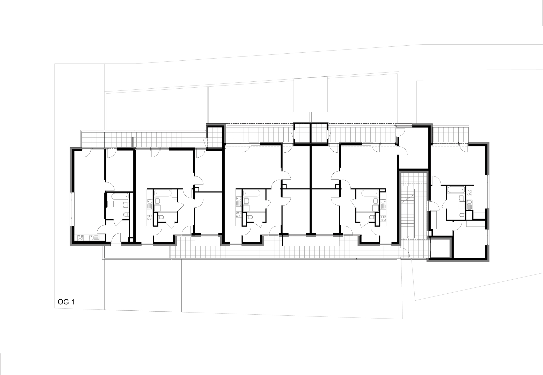
Wohnen Guntramsdorf
WOHNBAU FRIEDHOFSTRASSE
2353 Guntramsdorf, 2010-2012
Das im Ortsgebiet gelegene nach Norden leicht abfallende Grundstück wurde mit dem, über den Lichteinfall für die Nachbarnparzellen definierten, Volumen bebaut.
Die freie Aussicht nach Westen, gleichzeitig auch Lärmquelle durch Straße und Badnerbahn, und ein ruhiger Hof nach Osten bestimmen Erschließungund die Orientierung der Wohnungen. Der Zugang zu den Wohnungen erfolgt entlang der Strasse im verglasten Stiegenhaus mit Aussicht auf die Weinberge.
Fotos © G. Erlacher
Wohnen Wien 21
WOHNBAU HOLZMEISTERGASSE 4
Wien 21, 2007-2012 ; Wettbewerb 1.Preis
Die vor dem Bauplatz liegende Bushaltestelle und die danach anschließende S-Bahntrasse prägen, einerseits als Lärmquelle und andererseits als freies Vorfeld ohne Gegenüber nach Westen, den Bauplatz. Sie definieren Erschließung, innere Organisation und Ausrichtung der Wohnungen und formen gemeinsam mit Grundstückszuschnitt und baurechtlichen Vorgaben die Struktur des Baukörpers. Sein Erscheinungsbild und seine bauliche Ausformulierung werden Abbild der inneren Organisation und artikulieren Wohnen im Straßenraum.
Geschäftslokal Trotberger
GESCHÄFTSLOKAL TROTBERGER
Linzerstraße Wien 14, 2009-2011
Spiegelungen und eine verschiebbare Wand entgrenzen die verfügbaren Fläche des Geschäftslokales, das – durchgängig zum Innenhof und offen zum Straßenraum- als variable Raumlösung die diversen Anforderungen (Verkauf, Ausstellen, Büroarbeit etc.) aufnimmt.
Wohnen Wien 15
WOHNEN AM PARK
Dreihausgasse, Wien 15, 2003–2011
9 Wohnungen
Am Ende einer Zeilenbebauung gelegen, öffnet sich das Gebäude – in seiner inneren Organisation diesen städtebaulichen Bedingungen folgend – zum nordseitig angrenzenden Grünraum.
Seine fragmentierte, von der Konstruktion getrennte Fassade (Haut) löst die eindeutige Grenze zwischen Innen und Außen auf und macht „Wohnen“ von Außen ablesbar, ein wechselseitig zuschaltbarer Raum ermöglicht veränderbare Wohnungsgrößen.
Die Wohnräume öffnen sich über die Raumdiagonale nach außen und wirken dadurch grösser. Der von aussen hohl wirkende Baukörper erscheint in seiner Massivität reduziert. Das offene Erdgeschoss verstärkt diese räumliche Verklammerung und öffnet das Gebäude zum Park.
Auszeichnung: Gebaut 2010, MA19; Fotos © M. Seidl
Publikationen in Fachzeitschriften: zement+beton 6_10; siehe nextroom
































































































